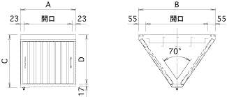
型 式 |
本体寸法(mm) |
適用フィルタ |
圧損・風量特性(m3/h) |
最適ハイガード型式
|
||||||
A |
B |
C |
D |
型 式 |
枚数 |
60Pa |
70Pa |
80Pa |
||
| DC-50 | 506 |
704 |
486 |
453 |
DK-50 | 2 |
1572 |
1704 |
1824 |
HGL-4030 |
| DC-40 | 506 |
590 |
404 |
371 |
DK-40 | 2 |
1236 |
1332 |
1428 |
HGL-3030 |
| DC-30 | 506 |
476 |
322 |
289 |
DK-30 | 2 |
900 |
960 |
1032 |
HGL-3025 |
| DC-25 | 506 |
418 |
281 |
248 |
DK-25 | 2 |
720 |
780 |
840 |
HGL-3020 |
| DC-3000 | 306 |
476 |
322 |
289 |
DK-3000 | 2 |
504 |
540 |
588 |
HGL-2020 |
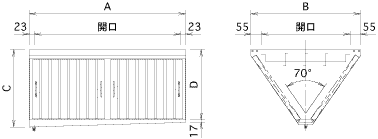
型 式 |
本体寸法(mm) |
適用フィルタ |
圧損・風量特性(m3/h) |
最適ハイガード型式
|
||||||
A |
B |
C |
D |
型 式 |
枚数 |
60Pa |
70Pa |
80Pa |
||
| DC-502 | 1006 |
704 |
502 |
453 |
DK-50 | 4 |
3144 |
3408 |
3648 |
HGL-5040 |
| DC-402 | 1006 |
590 |
420 |
371 |
DK-40 | 4 |
2472 |
2664 |
2856 |
HGL-4040 |
| DC-302 | 1006 |
476 |
338 |
289 |
DK-30 | 4 |
1800 |
1920 |
2064 |
HGL-4030 |
| DC-252 | 1006 |
418 |
297 |
248 |
DK-25 | 4 |
1440 |
1560 |
1680 |
HGL-5020 |
| DC-3002 | 606 |
476 |
322 |
289 |
DK-3000 | 4 |
1068 |
1080 |
1176 |
HGL-3025 |
型 式 |
本体寸法(mm) |
適用フィルタ |
圧損・風量特性(m3/h) |
最適ハイガード型式
|
||||||
A |
B |
C |
D |
型 式 |
枚数 |
60Pa |
70Pa |
80Pa |
||
| DC-503 | 1506 |
704 |
518 |
453 |
DK-50 | 6 |
4716 |
5112 |
5472 |
HGL-6050 |
| DC-403 | 1506 |
590 |
436 |
371 |
DK-40 | 6 |
3708 |
3996 |
4284 |
HGL-6040 |
| DC-303 | 1506 |
476 |
354 |
289 |
DK-30 | 6 |
2700 |
2880 |
3096 |
HGL-6030 |
| DC-253 | 1506 |
418 |
313 |
248 |
DK-25 | 6 |
2160 |
2340 |
2520 |
HGL-6020 |
| DC-3003 | 906 |
476 |
338 |
289 |
DK-3000 | 6 |
1512 |
1620 |
1644 |
HGL-4030 |
※各機種とも圧力損失が60~80Paの範囲で選定すると、グリスフィルタの能力が最も高くなります。
※ダブルチェックは、組合わせにより4連体以上も可能です。お問い合せください。
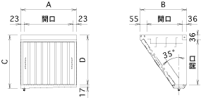
型 式 |
本体寸法(mm) |
適用フィルタ |
圧損・風量特性(m3/h) |
最適ハイガード型式
|
|||||||
A |
B |
C |
D |
型 式 |
枚数 |
60Pa |
70Pa |
80Pa |
上ダクト |
横ダクト |
|
| DC-50H | 506 |
422 |
486 |
453 |
DK-50 | 1 |
792 |
852 |
912 |
HGL-3025 |
HGL-3025 |
| DC-40H | 506 |
365 |
404 |
371 |
DK-40 | 1 |
618 |
666 |
714 |
HGL-3020 |
HGL-3020 |
| DC-30H | 506 |
308 |
322 |
289 |
DK-30 | 1 |
450 |
480 |
516 |
HGL-3015 |
HGL-3015 |
| DC-25H | 506 |
279 |
281 |
248 |
DK-25 | 1 |
360 |
390 |
420 |
HGL-2015 |
HGL-2015 |
| DC-3000H | 306 |
308 |
322 |
289 |
DK-3000 | 1 |
252 |
270 |
294 |
HGL-1515 |
HGL-1515 |
型 式 |
本体寸法(mm) |
適用フィルタ |
圧損・風量特性(m3/h) |
最適ハイガード型式
|
|||||||
A |
B |
C |
D |
型 式 |
枚数 |
60Pa |
70Pa |
80Pa |
上ダクト |
横ダクト |
|
| DC-502H | 1006 |
422 |
502 |
453 |
DK-50 | 2 |
1584 |
1704 |
1824 |
HGL-5025 |
HGL-4030 |
| DC-402H | 1006 |
365 |
420 |
371 |
DK-40 | 2 |
1236 |
1332 |
1428 |
HGL-5020 |
HGL-4025 |
| DC-302H | 1006 |
308 |
338 |
289 |
DK-30 | 2 |
900 |
960 |
1032 |
HGL-5015 |
HGL-5015 |
| DC-252H | 1006 |
279 |
297 |
248 |
DK-25 | 2 |
720 |
780 |
840 |
HGL-4015 |
HGL-4015 |
| DC-3002H | 606 |
308 |
322 |
289 |
DK-3000 | 2 |
504 |
540 |
588 |
HGL-3015 |
HGL-3015 |
型 式 |
本体寸法(mm) |
適用フィルタ |
圧損・風量特性(m3/h) |
最適ハイガード型式
|
|||||||
A |
B |
C |
D |
型 式 |
枚数 |
60Pa |
70Pa |
80Pa |
上ダクト |
横ダクト |
|
| DC-503H | 1506 |
422 |
518 |
453 |
DK-50 | 3 |
2376 |
2556 |
2736 |
HGL-6025 |
HGL-5030 |
| DC-403H | 1506 |
365 |
436 |
371 |
DK-40 | 3 |
1854 |
1998 |
2142 |
HGL-6020 |
HGL-5025 |
| DC-303H | 1506 |
308 |
354 |
289 |
DK-30 | 3 |
1350 |
1440 |
1548 |
HGL-6015 |
HGL-6015 |
| DC-253H | 1506 |
279 |
313 |
248 |
DK-25 | 3 |
1080 |
1170 |
1260 |
HGL-5015 |
HGL-5015 |
| DC-3003H | 906 |
308 |
338 |
289 |
DK-3000 | 3 |
756 |
810 |
882 |
HGL-4015 |
HGL-4015 |
※各機種とも圧力損失が60~80Paの範囲で選定すると、グリスフィルタの能力が最も高くなります。
※ダブルチェックは、組合わせにより4連体以上も可能です。お問い合せください。
各機種とも圧力損失が60~80Paの範囲で選定すると、グリスフィルタの能力が最も高くなります。
型 式 |
本体寸法(mm) |
有効面積 (m2/h) |
面風速(m/s) |
0.95 |
1.04 |
1.12 |
1.20 |
1.27 |
1.34 |
||
H |
W |
T |
圧力損失(Pa) |
50 |
60 |
70 |
80 |
90 |
100 |
||
| DK-50 | 500 |
500 |
30 |
0.2116 |
風 量 (m3/h) |
726 |
792 |
852 |
912 |
966 |
1020 |
| DK-40 | 400 |
500 |
30 |
0.1656 |
564 |
618 |
666 |
714 |
756 |
798 |
|
| DK-30 | 300 |
500 |
30 |
0.1196 |
408 |
450 |
480 |
516 |
546 |
576 |
|
| DK-25 | 250 |
500 |
30 |
0.0966 |
330 |
360 |
390 |
420 |
444 |
468 |
|
| DK-3000 | 300 |
300 |
30 |
0.0676 |
234 |
252 |
270 |
294 |
312 |
324 |
|
燃料の名称 |
発熱量 |
理論廃ガス量 |
| 都市ガス | - |
0.93m3/h/kW・h (0.00108m3/h/kcal) |
| LPガス | 50.2MJ/kg (12,000kcal/kg) |
0.93m3/h/kW・h (0.00108m3/h/kcal) |
| 灯油 | 43.1MJ/kg (10,300kcal/kg) |
12.1m3/h/kg |
旧建設省告示第1403号 平成12年5月30日 |
【例】 消費熱量:75kW(64,500kcal/h)
使用ガス:都市ガスの場合
V=40×0.93×75=2790m3/h
(V=40×0.00108×64,500=2790m3/h)









